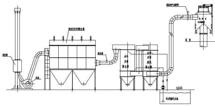
分室反吹袋式除塵設備系統主要由重力沉降室、高溫煙氣切斷閥、水冷多管旋風除塵器、水冷多管冷卻器、熱電偶、分室反吹布袋除塵器、調風閥、引風機、消音器、抽塵管道及煙囪和脫硫系統等組成。經此除塵設備后煙塵排放≤50 mg/Nm3(20~50mg/Nm3),除塵效率能達到99.5%,煙氣黑度(林格曼黑度)小于一級,SO2達到排放標準,是沖天爐環保除塵設備的。
也可將此除塵設備系統中的分室反吹袋式除塵器更換為氣箱脈沖袋式除塵器,它集分室反吹和脈沖噴吹等除塵設備的特點,增強了使用適應性,可廣泛應用于冶金、鑄造、水泥和糧食加工、制藥、化工等行業的環保除塵。其煙塵排放濃度≤50 mg/Nm3,除塵效率可達99%以上。
濕法綜合過濾除塵器主要由重力沉降室、低阻旋風除塵、文氏管、葉片旋流、三級填料過濾脫泥脫水除塵器、水膜除塵器、循環水系統及引風機等組成。煙氣由沉降室除去大顆粒焦碳末,再進入文氏管(文氏管管口裝有噴嘴,噴出霧狀水滴),在被加速流動的同時,廢氣及廢氣流中的粉塵與霧狀水滴充分接觸,至使粉塵被水滴俘獲,廢氣中的有害氣體也溶解于霧狀水滴中,水滴又彼此凝聚,重量增加,隨加速流動的氣流,在慣性作用下,沖入底部污水池中。另有部分未被截留下來的有害氣體及粉塵隨廢氣流經葉片旋流脫泥脫水凈化后再進入除塵器腔體,經過多次過濾和洗滌凈化,致使廢氣中的粉塵和有害氣體被去除,而潔凈的氣體被送入煙囪排入大氣中。經過此除塵設備后,能夠達到煙塵排放≤150mg /Nm3,林格曼黑度≤1級,而且二氧化硫的排放低于干法除塵。

冀公網安備13098102000581號